Floor Plans
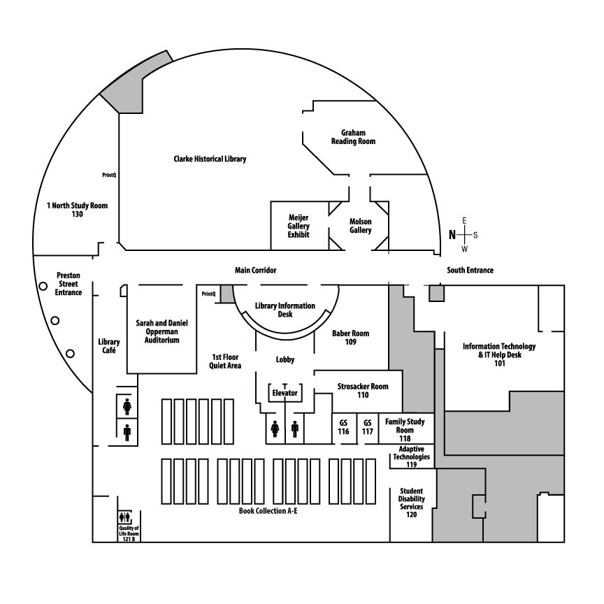
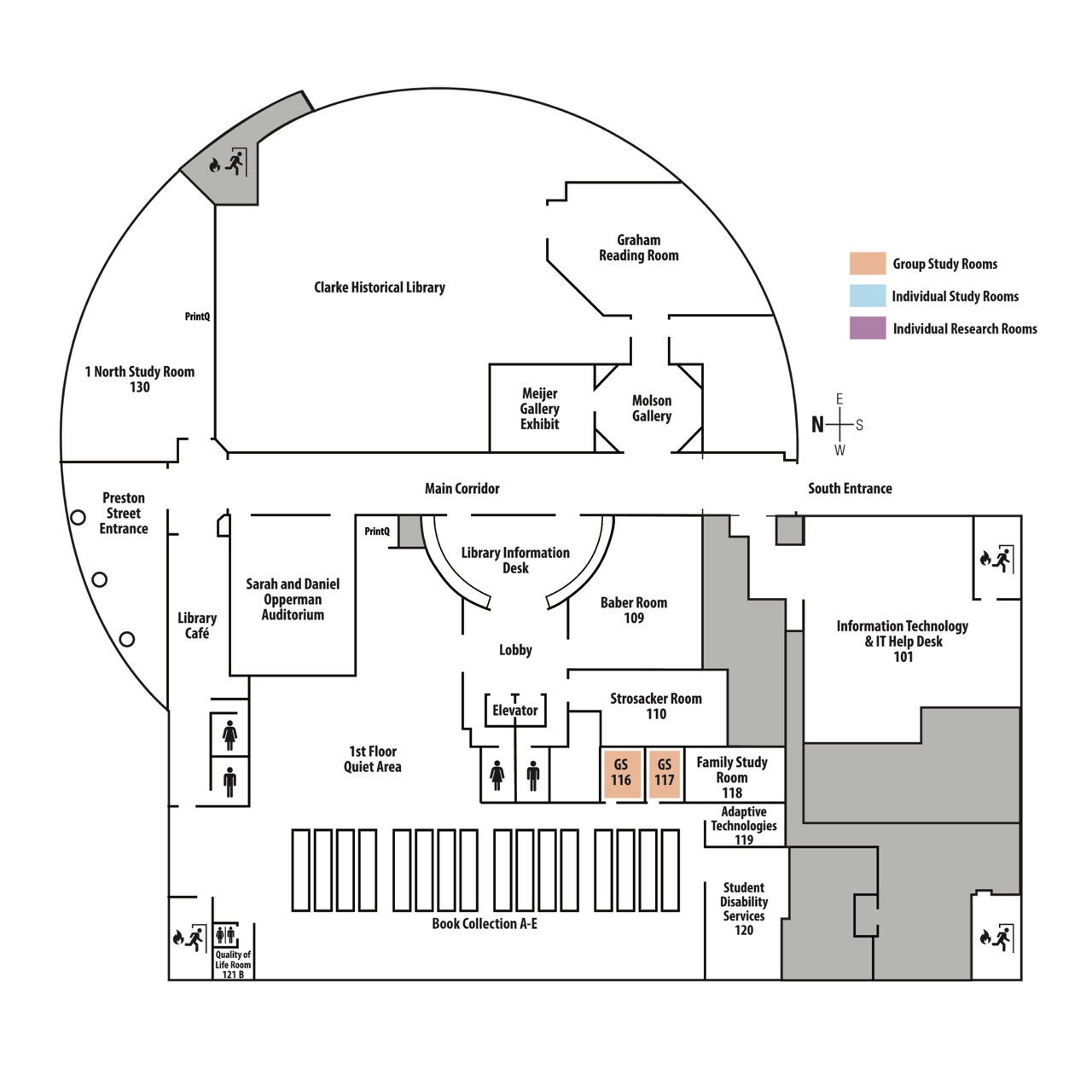
1st Floor

1st Floor Locations
PrintQ Station
- 1 North Study Room (Black/White and Color)
- 1st Floor Quiet Area (Black/White and Color)
- IT Help Desk (Black/White)
Scanner
Located in the 1 North Study Room
1 North Study Room - Park 130
This space is open longer hours than the rest of the building and features computers, printers, and scanners.
Bloomberg Terminals
A computer system for patrons to access the Bloomberg professional service through which users can monitor and analyze real-time financial market data. Located inside 1 North Study Room.
Clarke Historical Library - Park 131
The Clarke Historical Library curates extensive collections of CMU history, Michigan history, children’s literature, and Native American materials.
1st Floor Quiet Area
This space includes group study rooms, computers, and printers. It is open for extended hours during the Fall and Spring semesters.
Group Study Rooms
Available for use by groups of two or more.
Main Corridor
The main corridor on the first floor of the Park Library provides access to the Extended Hours Study, a cafe, Sarah and Daniel Opperman Auditorium, The Clarke Historical Library, IT Help Desk, and the Park Library's Lobby.
Ponder Coffee
A coffee shop offering food and beverages.
Sarah and Daniel Opperman Auditorium
This 129-seat high-tech facility is designed for hosting presentations and conferences.
Information Desk
At the Information Desk, you can ask for directions and receive general assistance in the library.
Baber Room - Park 109
This room features art exhibits and study space.
IT Help Desk - Park 101
CMU’s main provider of technical support for students, faculty, and staff.
Student Disability Services - Park 120
Student Disability Services provides services and assistance to enrolled students who are either permanently or temporarily disabled.
2nd Floor

2nd Floor Locations
Cash Printers/Copiers
Near the Adobe Digital Lounge. (Black/White and Color)
Scanners
Located near the "Browsing" book shelves on the north end.
Bloomberg Terminals
A computer system for patrons to access the Bloomberg professional service through which users can monitor and analyze real-time financial market data. Located outside of Copeland Suite.
Adobe Digital Lounge
A place to work on and get help with Adobe and other creative software. Includes collaboration, editing, and recording spaces.
Library Services Desk
The place to check out and return books, pick up course reserve materials, get help with research, check out laptops and other technology, and have general questions answered.
Copeland Suite
A collaborative work space that includes flat-screen monitors and whiteboards.
Library Instruction Rooms - Park 207 and 209
Classes learn research skills and the effective use of the Libraries’ vast resources and services.
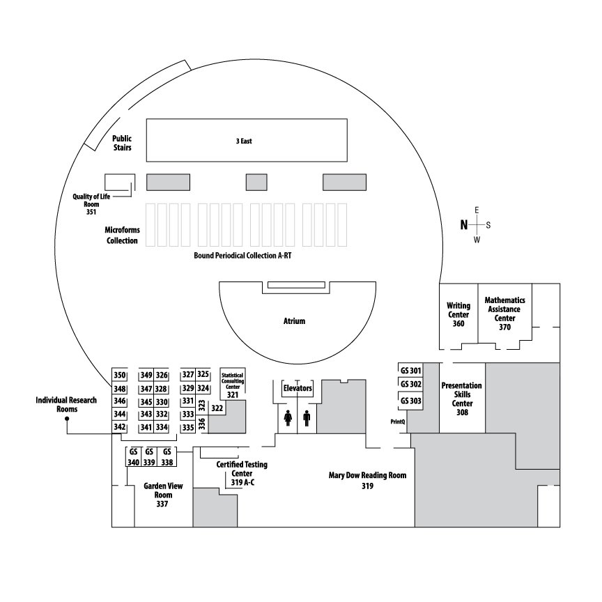
3rd Floor

3rd Floor Locations
PrintQ Station
Next to group study room 303. (Black/White)
Individual and Group Study Rooms
Available for use by individuals and groups of two or more.
Certified Testing Center - Park 319 A-C
The center offers test proctoring for students in online classes and administers standardized tests such as the MTTC, GRE, GMAT, and more.
Writing Center - Park 360
Provides one-on-one consulting for student writers on campus and online in a collaborative environment that assists in developing writing strategies and skills across disciplines.
Math Assistance Center - Park 370
A drop-in support center that helps students with everything from basic algebra to intermediate-level statistics.
Statistical Consulting Center - Park 321
Provides statistical support and training for CMU faculty and graduate students in all phases of research projects.
Individual Research Rooms
Central Michigan University Libraries have individual research rooms available for use by CMU faculty, including emeriti faculty, staff, and graduate students.
Mary Dow Reading Room - Park 319
A study area reserved for quiet and individual study includes carrels that provide a comfortable, distraction-free environment.
Third Floor Exhibit Area
Traveling interpretive exhibits that support academic and cultural disciplines.
3 East
This is a study space with a view, and a place for groups to collaborate, learn with others and get things done.
Quality of Life Room
This room can be used for prayer, nursing, meditation, or de-stressing. Make reservations at the 2nd Floor Checkout Desk or call 989-774-3114.
4th Floor

4th Floor Locations
PrintQ Station
Next to group study room 402. (Black/White)
Curriculum and Instructional Support - 413
This group provides faculty with information and support to improve teaching and learning at CMU.
Group Study Rooms
Available for use by groups of two or more.
Academic Senate - 400
This office is the primary policy-making body for academic life at CMU.